匠心 服務 創(chuàng)新 品質

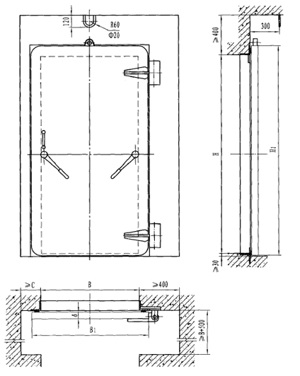
防火密閉門的顯著特點是防火能力強,門扇中有防火填料,除具有普通防護密閉門或密閉門的功能外還能防火、防煙,其防火等級為甲級。

| 型號 | 門孔寬B | 門孔高H | 門扇厚δ | C | B1 | H1 |
|---|---|---|---|---|---|---|
| FHM0818 | 800 | 1800 | 64 | 200 | 980 | 1911 |
| FHM0820 | 800 | 2000 | 64 | 200 | 980 | 2111 |
| FHM0916 | 900 | 1600 | 64 | 200 | 1080 | 1711 |
| FHM0918 | 900 | 1800 | 64 | 200 | 1080 | 1911 |
| FHM0920 | 900 | 2000 | 64 | 200 | 1080 | 2111 |
| FHM1020 | 1000 | 2000 | 64 | 200 | 1180 | 2111 |
| FHM1021 | 1000 | 2100 | 64 | 200 | 1180 | 2211 |
| FHM1118 | 1100 | 1800 | 64 | 200 | 1280 | 1911 |
| FHM1220 | 1200 | 2000 | 64 | 200 | 1380 | 2111 |
| FHM1320 | 1300 | 2000 | 64 | 200 | 1480 | 2111 |
| FHM1321 | 1300 | 2100 | 64 | 200 | 1480 | 2211 |
| FHM1520 | 1500 | 2000 | 112 | 250 | 1680 | 2123 |
| FHM1521 | 1500 | 2100 | 112 | 250 | 1680 | 2223 |
| FHM2020 | 2000 | 2200 | 138 | 250 | 2180 | 2323 |
| FHM2022 | 2000 | 2200 | 138 | 250 | 2180 | 2323 |